100 Tower Gardens: The building
100 Tower Gardens Road is a big building with 270 square metres of “usable” space (ignoring corridors, cupboards and loos) over three floors, and two large yards.
In case you wanted to get a better sense of the space, or haven’t been to one of our workshops in the building yet, we’ve put together a few photos, floor plans and AI-generated mock-ups of how the space could be used – hoping we will be able to replace them with some real photos soon!


Layout
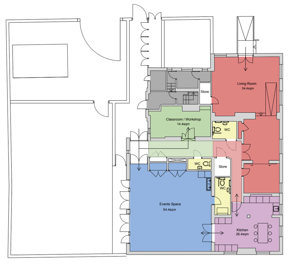
The Ground floor consists of the old entrance, a few separate rooms ideal for workshops, a residential sized kitchen and a big modern room that was added in the early 2000s as a SureStart nursery. It also has two large yards.

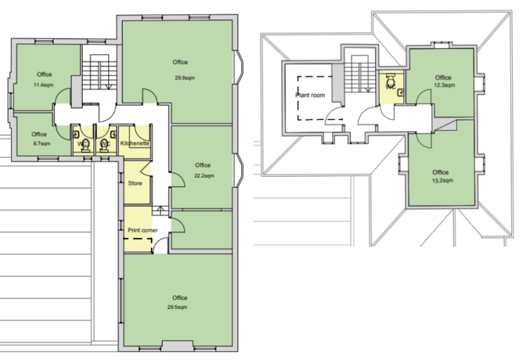
Upstairs there are two more floors. The first floor consists of office space with a kitchenette, two loos and an accessible lift. Two of the rooms are very big, and one was used for workshops in the past. The second floor has two smaller rooms with a great view over the estate.

Ideas of how we could use the space
We believe that only minor work would be needed to start using the space, in particular the ground floor. With a bit more work, and after it has been retrofit by the community, we think it would be an amazing space! One could open up the kitchen to the main hall and make a great space for community meals and cooking workshops, and more. Installing a ramp and opening up the front entrance would make a lovely, accessible “public living room”. The possibilities are endless!



One of the proposed layouts discussed with Unit38 Architects.





Building conditions
Tower Gardens Community Corner CIC recently commissioned a building condition survey by James Walker of JNW and Co. Overall, the building is “OK”, given its age. It does however have some expensive concerns, including:
- Roof: Old and starting to lose tiles. Also no insulation.
- Windows and dormers: Too many years without repair have led to rotten frames and missing panes.
- Heating system: Over 20 years old.
- Mechanical systems: Electrical system, fire safety, etc. old and need testing.
- Leaks, broken loos and kitchen



Energy condition and retrofit
The next step is to understand the building’s current energy condition, and the potential that we could unlock together through a community-led retrofit. We are talking to specialists about getting a full retrofit survey done soon.
